A Designer’s Floor Plan Tips for Custom Family Homes
When most people start planning a new build or renovation, they focus on square footage. How many bedrooms? How big is the kitchen? Will it fit everyone comfortably?
While those questions matter, the truth is this: a well-designed floor plan isn’t just about size but it’s also about how your home supports your daily life.
As an interior designer working with families throughout Northeast Georgia, I’ve seen firsthand how thoughtful floor plan decisions can completely change the way a home feels and functions. Before finishes, furnishings, or decor ever come into play, the floor plan sets the foundation for everything that follows.
Let’s start with how your family actually lives…
One of the most important things we consider when reviewing or developing a floor plan is how each space will be used for that individual family. This goes beyond just how it looks on paper.
Tip One: Each Room Should Be a Destination
Every room in your home should feel intentional. Your traffic flow should move around a space, not cut through it. When rooms become hallways, they lose their sense of purpose and comfort. This is especially important in main living areas like family rooms or dining spaces. Preserving clear paths of circulation helps each room feel calmer, more functional, and more enjoyable to be in.
Tip Two: Kitchen Spacing Is Not a Place to Compromise
The kitchen is often the heart of the home, especially for active families. Proper clearances make a huge difference in how it functions day to day. We typically aim for 48 inches of clearance between an island and surrounding cabinetry. While 36 inches is often considered the minimum, it can feel crowded very quickly especially when multiple people are cooking, passing through, or gathering at once.
Good kitchen spacing allows the room to feel open and efficient not crowded or chaotic.
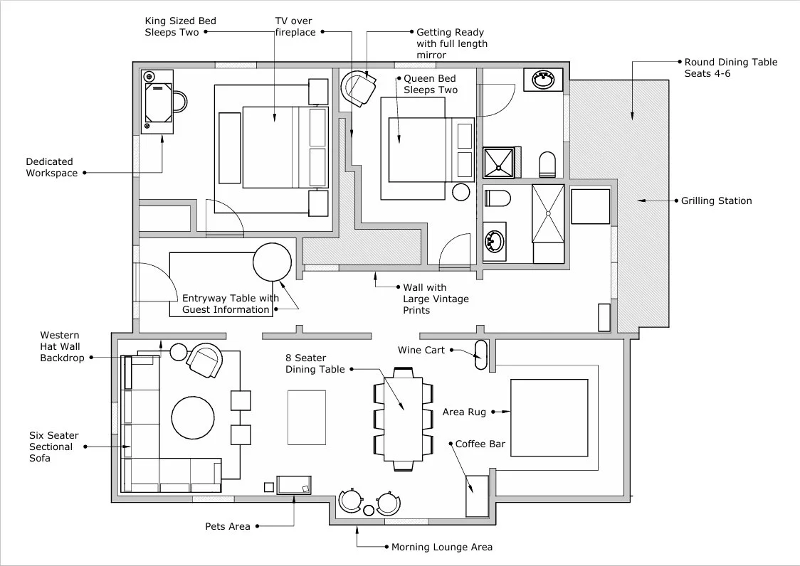
Final Floorplan Layout - Harmony on Highland Project - Level One
Tip Three: Pay Attention to Natural Light Throughout the Day
Nowadays, families have come to appreciate large windows that usher in natural light. A thoughtful floor plan takes into account where natural light enters the home and how it changes from morning to evening. We often place frequently used spaces where natural light supports energy and function:
Morning light in kitchens and breakfast areas
Softer, indirect light in bedrooms
Balanced light in living spaces for both daytime use and evenings
Natural light impacts mood, productivity, and overall well-being so this is not a feature that you want to neglect. When rooms are positioned with intention, your home naturally feels better to live in.
Tip Four: Design for Real Life, Not Just Square Footage
I know it sounds cliche but bigger is NOT always better. Square footage doesn’t tell the whole story. A great floor plan accounts for the small, everyday moments that make up real life. Before committing to a floorplan layout, ask yourself:
Where do shoes and bags land when you walk in the door?
Where does the dog sleep?
Where do kids gather while dinner is being made?
We had a client jokingly say that she felt like a tornado sometimes beacuse wherever she was in the house, her kids were sure to be right next to her. We design with these daily rhythms in mind because we believe that luxury living begins in a home that supports your routines instead of working against them.
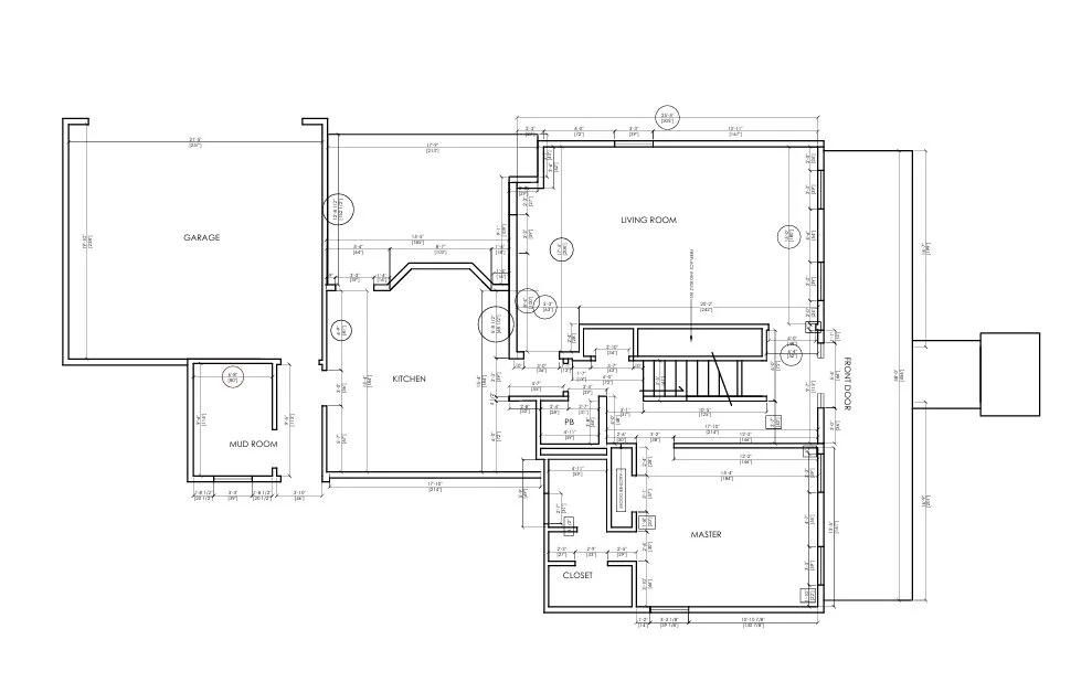
Existing Field Dimensions - Stone + Story Estate Project - Level 1+2
Bonus Tip: A Thoughtful Note on Online Floor Plans
Online house plans can be a helpful starting point, but they should never be treated as a finished solution. If you choose an online plan, it’s essential to build in time to analyze and adjust it with both an architect and an interior designer. What works for one family doesn’t always work for another. Ceiling heights, room proportions, storage needs, and furniture layouts often need refinement to truly support your lifestyle.
This review period is where potential frustrations are caught early (ALWAYS before construction begins) and where a good plan becomes a great one.
Collaboration with an interior designer and architect matters…
The most successful homes come from collaboration. When an interior designer and architect work together early, the result is a home that feels cohesive, functional, and thoughtfully planned from the inside out.
An interior designer brings a lived-in perspective:
How furniture will fit
How rooms will be used daily
How flow, light, and storage impact comfort
This partnership ensures your home doesn’t just look beautiful on paper but also it works beautifully in real life.
As you plan or dream about your next project, remember this: beauty starts with structure.
A floor plan that fits your family’s rhythms, routines, and lifestyle is one of the most important design investments you can make. Whether you’re building from the ground up or refining an existing plan, taking the time to get the layout right sets the stage for a home that feels effortless, personal, and enduring.
If you’re building or furnishing a home in Northeast Georgia and want guidance through this process, thoughtful planning is where we begin.

